00084 | Prodej stavebního pozemku 2016 m²

Martinů, Šestajovice
9 375 Kč (za m2)

Stavební pozemek – Šestajovice u Prahy, ul. Martinů
Nabízíme k prodeji atraktivní stavební pozemek o celkové výměře 2 016 m², nacházející se v klidné části obce Šestajovice (Praha-východ), v ulici Martinů.
Jedná se o velmi vyhledávanou lokalitu s příjemnou atmosférou rodinné zástavby, v dosahu přírody a zároveň s perfektní dostupností do Prahy.
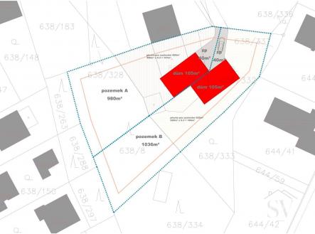
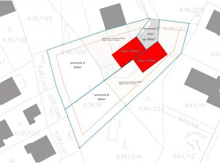
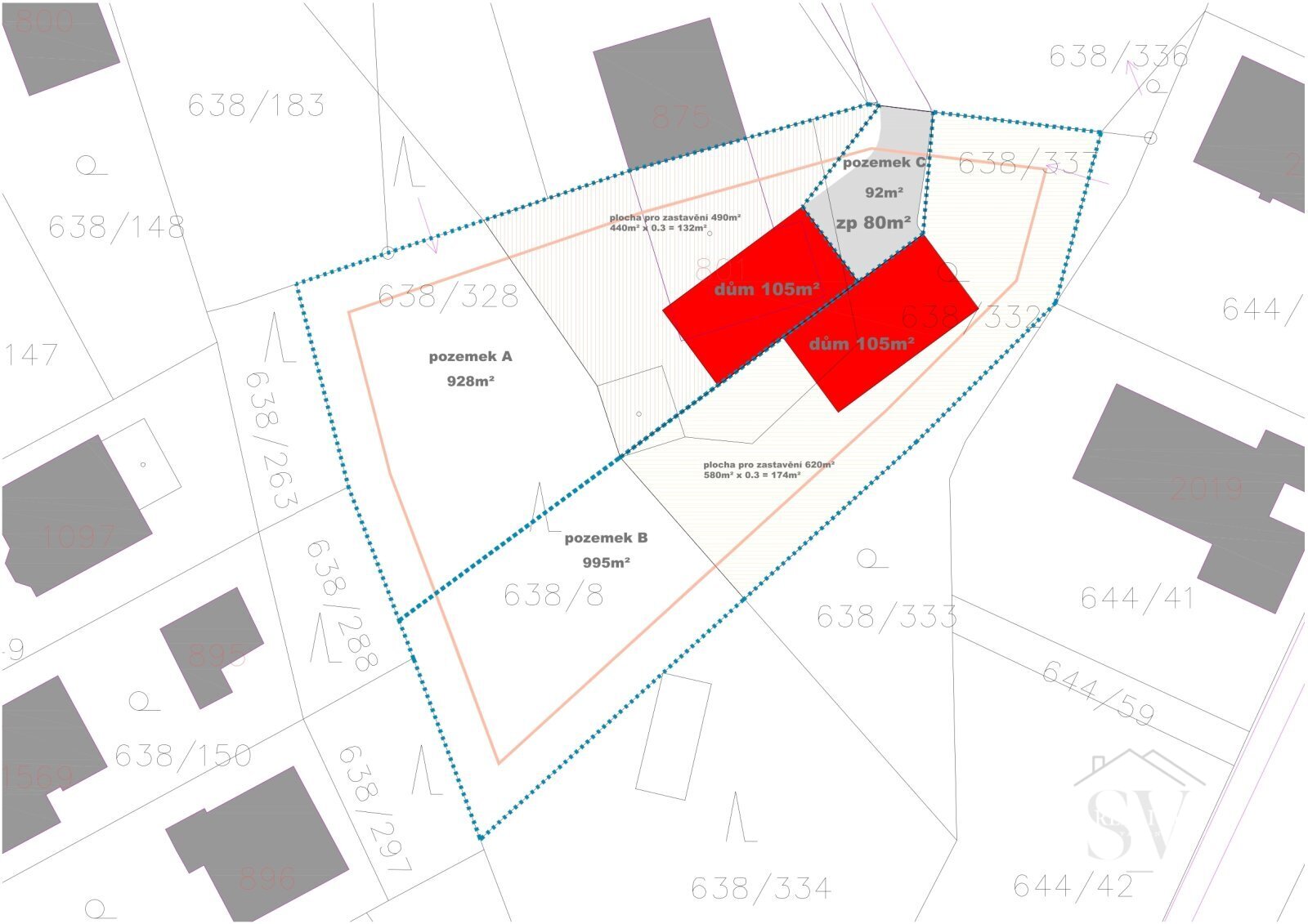
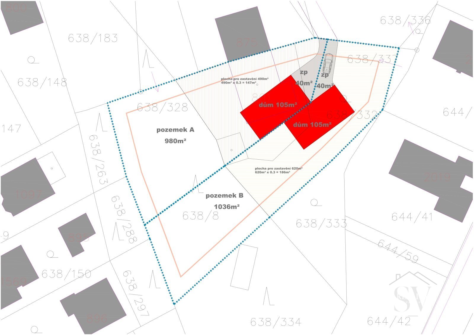
Pozemek je dle územního plánu vedený jako plocha pro nízkopodlažní rodinné bydlení (BI) a je tak ideální jak pro výstavbu rodinného domu, tak i pro menší developerský záměr dvou domů.
Celková plocha umožňuje rozdělení na dvě části – pozemek A o výměře 980 m² a pozemek B o výměře 1 036 m² – přičemž obě parcely splňují podmínky územního plánu.
Využití a parametry pozemku
V souladu s územním plánem lze zastavět až 30 % celkové plochy, tedy přibližně 333 m², což odpovídá výstavbě dvou rodinných domů o zastavěné ploše kolem 105 m² každý.Nové rodinné domy mohou mít maximálně dvě nadzemní podlaží a podkroví nebo rovnou střechu, čímž zůstane zachován jednotný charakter okolní zástavby. Pozemek s částí vzrostlých stromů nabízí naprosté soukromí i přirozený kontakt s přírodou. K dispozici je architektonické zpracování návrhu, které řeší umístění dvou samostatných rodinných domů se zahradami, zpevněnými plochami a příjezdovou cestou. Pro lepší představu je k nabídce připravena i vizualizace, která bude součástí videoprezentace.
Přístup a komunikace
Přístup k pozemku je právně zajištěn věcným břemenem chůze a jízdy, které je řádně zapsáno v katastru nemovitostí.
Toto věcné břemeno zaručuje budoucím vlastníkům plnohodnotný a trvalý přístup z veřejné komunikace Martinů.
Cesta je současně vyznačena v geometrickém plánu a je připravená k doplnění zpevněného povrchu dle finálního řešení.
Právní jistota přístupu je potvrzena i ve smlouvě o zřízení věcného břemene, která je součástí podkladů.
Příprava území a inženýrské sítě
Pozemek se nachází v plně zastavitelném území obce Šestajovice, které je součástí stabilizované zóny rodinných domů.
Všechny inženýrské sítě jsou v dosahu – elektřina, vodovod, kanalizace i plyn se nacházejí v přilehlé ulici Martinů.
Území bylo odděleno z původního většího celku a připraveno pro výstavbu, včetně plánované parcelace a vyznačení přístupové cesty.
K dispozici jsou také geodetické výkresy a situační plány v měřítkách 1:250 a 1:500, které přehledně zachycují polohu plánované zástavby i technické napojení.
Lokalita a okolí
Obec Šestajovice patří dlouhodobě mezi nejvyhledávanější lokality v dojezdové vzdálenosti od Prahy.
Kombinuje klidné prostředí pro rodinné bydlení s kompletní občanskou vybaveností – v místě se nachází základní i mateřská škola, pošta, lékaři, obchody, restaurace i sportovní zařízení.
V blízkosti je Klánovický les, cyklostezky a rozsáhlé přírodní zázemí.
Dopravní dostupnost je vynikající – autem cca 15 minut na metro B – Černý Most, případně přímé autobusové spojení PID.

  • Celková plocha:2 016 m2
  • Druh pozemku:pro bydlení
  • Umístění objektu:klidná část obce


Prodávající makléř

Penelope

Stanislava Vondráková

Kontaktní formulář